山东中新科农生物科技有限公司
自行监测方案
(一)废气
厂区有组织废气排放监测点、监测指标、监测频次及监测方法见表1
表1有组织废气监测记录信息表
序号 | 污染源类别/监测类别 | 排放口编号/监测点位 | 排放口名称/监测点位名称 | 监测内容(1) | 污染物名称 | 监测设施 | 自动监测是否联网 | 自动监测仪器名称 | 自动监测设施安装位置 | 自动监测设施是否符合安装、运行、维护等管理要求 | 手工监测采样方法及个数(2) | 手工监测频次(3) | 手工测定方法(4) | 其他信息 | ||||||||||||||||||||||||||||||||||||||||||||||||||||||||||||||||||||||||||||||||||||||||||
| ||||||||||||||||||||||||||||||||||||||||||||||||||||||||||||||||||||||||||||||||||||||||||||||||||||||||
厂区有组织废气排放监测点、监测指标、监测频次及监测方法见表2
表2无组织废气监测记录信息表
序号 | 污染源类别/监测类别 | 排放口编号/监测点位 | 排放口名称/监测点位名称 | 监测内容(1) | 污染物名称 | 监测设施 | 自动监测是否联网 | 自动监测仪器名称 | 自动监测设施安装位置 | 自动监测设施是否符合安装、运行、维护等管理要求 | 手工监测采样方法及个数(2) | 手工监测频次(3) | 手工测定方法(4) | 其他信息 |
1 | 废气 | 厂界 | 臭气浓度 | 臭气浓度 | 手工 | 非连续采样 至少3个 | 1次/半年 | 空气质量 恶臭的测定三点比较式臭袋法(GB/T 14675-93) | ||||||
2 | 废气 | 厂界 | 二甲苯 | 二甲苯 | 手工 | 非连续采样 至少3个 | 1次/半年 | 环境空气 苯系物的测定 活性炭吸附/二硫化碳解吸-气相色谱法HJ 584-2010 代替GB/T 14670-93 | ||||||
3 | 废气 | 厂界 | 甲醇 | 甲醇 | 手工 | 非连续采样 至少3个 | 1次/半年 | 顶空气相色谱法 | ||||||
4 | 废气 | 厂界 | 挥发性有机物 | 挥发性有机物 | 手工 | 非连续采样 至少3个 | 1次/半年 | 气象色谱法 | ||||||
5 | 废气 | 厂界 | 颗粒物 | 颗粒物 | 手工 | 非连续采样 至少3个 | 1次/半年 | 环境空气 总悬浮颗粒物的测定 重量法 GB/T 15432-1995 |
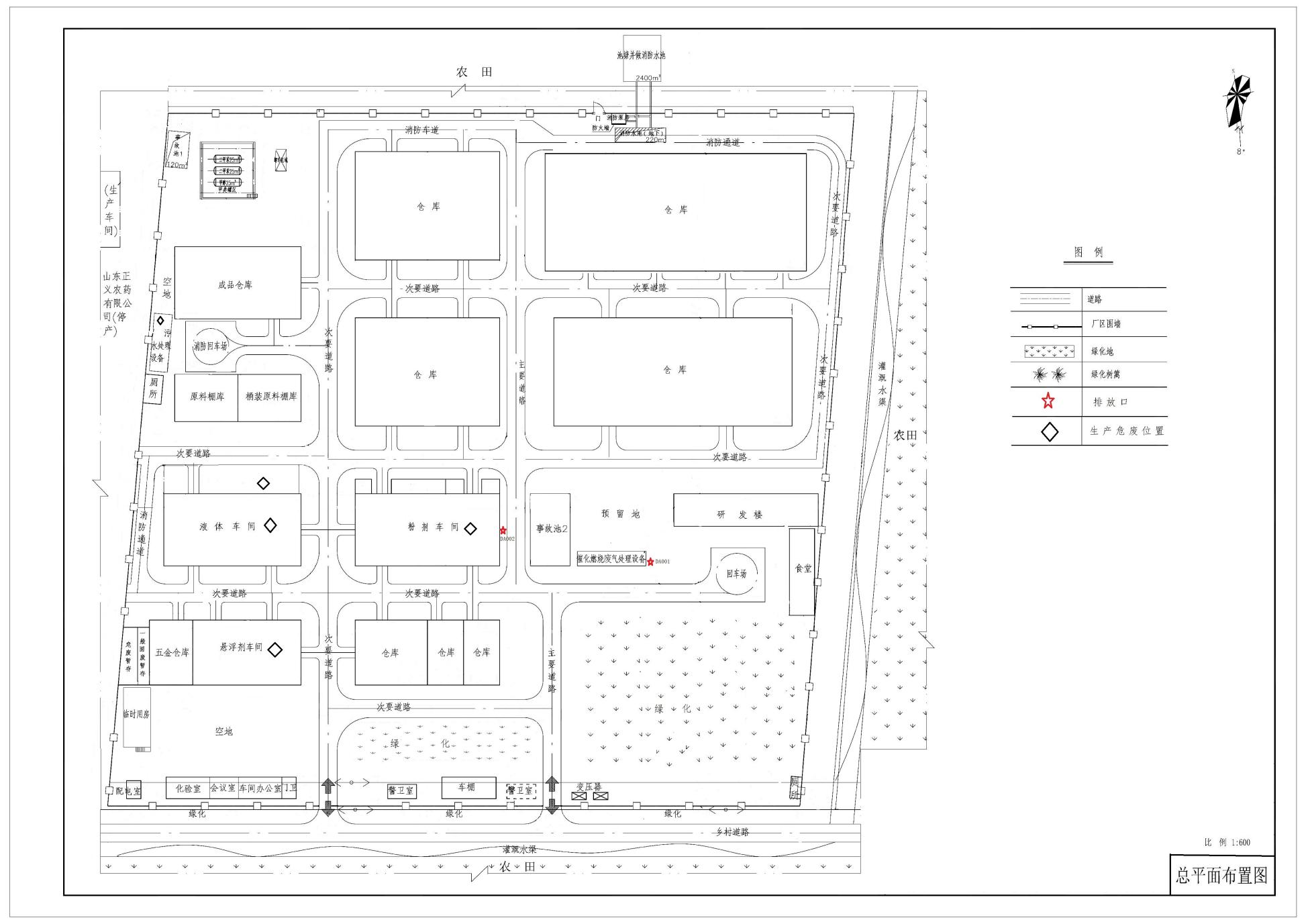
(二)监测点位示意图

附件1:突发环境事件应急预案